Trilocale in vendita

Jesolo, Via Asolo - Lido Est
€ 260.000
3 locali 3 locali
66 Mq 66 Mq
2 bagni 2 bagni

Trilocale in vendita

Jesolo, Via Asolo - Lido Est

Descrizione annuncio

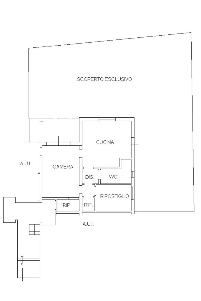
In piazza Manzoni, soli 400 metri dal mare, proponiamo in vendita un trilocale al piano terra, ristrutturato di recente, caratterizzato da ambienti funzionali e da un ampio giardino privato.

L’ingresso si apre su un luminoso soggiorno con angolo cottura, ambiente accogliente e ben organizzato, ideale come zona giorno. Un disimpegno conduce alla zona notte, composta da un bagno finestrato con box doccia, una camera singola e un pratico ripostiglio.

La camera matrimoniale, di ampie dimensioni, è in grado di ospitare fino a quattro posti letto ed è servita da un secondo bagno con box doccia. Una grande porta finestra garantisce luminosità naturale e accesso diretto al giardino, spazio esterno riservato e perfetto per vivere momenti di relax o convivialità.

L’immobile è stato oggetto di una recente ristrutturazione che ha previsto l’installazione di infissi di nuova generazione, in grado di assicurare ottimo isolamento termico e acustico. La porta d’ingresso è munita di tapparella motorizzata con blocco di sicurezza a chiave, per una maggiore protezione e comfort.

Completano la proprietà l’impianto di aria condizionata con doppio split caldo/freddo.

Una soluzione abitativa completa, ideale come residenza principale o casa vacanze, che unisce comfort moderni, efficienza energetica e la piacevole vicinanza al mare.

Mostra tutto

Nelle vicinanze

Trasporto pubblico Trasporto pubblico
Lido di Jesolo - New Market
Lido di Jesolo - New Market
90 m
27
27
180 m
Ricariche auto elettriche Ricariche auto elettriche
Falkensteiner Hotel & Spa Jesolo
860 m
Hotel Atlantico
1,1 Km
Park Hotel Brasilia
1,2 Km
Parcheggio a pagamento Jtaca Jesolo | BeCharge
1,8 Km
Hotel Croce Di Malta
2,2 Km
Scuole Scuole
Istituto Elena Cornaro
460 m
Scuole
1,2 Km
Scuola Elementare Giovanni Vega
1,2 Km
Scuola Materna Santa Giuliana
1,2 Km
Scuola Media Gabriele D'Annunzio
2,1 Km
Farmacia Farmacia
Farmacia
520 m
Farmacia Cossetini
1,1 Km
Farmacia Milano
1,3 Km
Farmacia Quintavalle
1,5 Km
Farmacia Internazionale
2,9 Km
Ospedali Ospedali
Ospedali
300 m
Presidio Ospedaliero Di Jesolo
520 m
Supermercati Supermercati
Nino
510 m
naturasi
740 m
Maxi express
1,0 Km
Aldi
1,3 Km
Famila
1,4 Km
Negozi Negozi
Panificio Moderno
510 m
Sisley
1,0 Km
Dolce forno
1,1 Km
Mötivi
1,4 Km
Takko Fashion
1,4 Km
Bar Bar
Bar Alla Rotonda
290 m
Chiosco Bar Loredana
470 m
Snack Bar Birreria "Tibidabo"
530 m
Vecchie Maniere
750 m
Edina
820 m
Ristoranti Ristoranti
Tortuga
270 m
da Livio
350 m
Osteria Ciro
630 m
Ristorante Giappanese Kanji
640 m
Al Corso
730 m
Mostra tutto

Caratteristiche

Rif.:
61131529
Piano:
Basso di 2
Totale piani:
2
Posti auto:
3
Camere da letto:
2
Arredamento:
Parziale
Mostra tutto
Prezzo Prezzo
€ 260.000
Rata mutuo Rata mutuo
€ 1.226 / mese
Spese annue Spese annue
€ 1.000
Proponi il tuo prezzoProponi il tuo prezzo

Classe Energetica

E
E
E
E
E
E
E
E
E
EP globale non rinnovabile:
133.28 kW h/m² anno
EP globale rinnovabile:
0.00 kW h/m² anno
EP invernale del fabbricato:
EP estiva del fabbricato:
Anno di costruzione:
1967
Riscaldamento:
Autonomo
Tipo impianto:
Ad aria
Tipo alimentazione:
Aria

Ti interessa visionare l'immobile?

Fissa un appuntamento  Fissa un appuntamento

Richiedi informazioni

Clicca su Leggi per aprire l'informativa
* Questi campi sono obbligatori

Calcola il tuo mutuo

Semplice e senza impegno
Anticipo

( % )
Mutuo

( % )

pochi semplici passi

inserisci i tuoi dati
Questionario completato
Grazie per aver richiesto un appuntamento senza impegno con un nostro Consulente del Credito e Assicurativo.

Hai inserito correttamente tutti i dati necessari e a breve riceverai una e-mail con un link da convalidare per inviare i tuoi dati.
Affiliato
Capital Srl
Via Delle Meduse , 10 30017 Jesolo (VE)

Il nostro staff


  • Andrea Bertin
    Affiliato
Via Delle Meduse , 10 30017 Jesolo (VE)
Zona: Jesolo Lido Est
Mostra su mappa
Orari: Dal martedì al sabato ore 09:00 - 13:00 e 14:00 - 18:00
Affiliato
Capital Srl
Via Delle Meduse , 10 30017 Jesolo (VE)

2025 Tecnocasa Franchising S.p.A. - P. IVA 08365160152 - Via Monte Bianco 60/A 20089 Rozzano (MI). Ogni agenzia ha un proprio titolare ed è autonoma. Privacy policy | Policy utilizzo | Cookie policy